ADx5, gibt es Vertriebszeichnungen für AP UP und INT ?

gezielte Suche ---> hier: Bild
Hardware zur Erweiterung der Funktionen über die Leser hinaus. Alles zum Thema hier.

Moderator: h-winkelmann

Antworten
Benutzeravatar
h-winkelmann
Beiträge: 2846
Registriert: 01 Aug 2012 18:16

ADx5, gibt es Vertriebszeichnungen für AP UP und INT ?

Beitrag von h-winkelmann » 07 Mär 2018 12:39

Gibt es technische Zeichnungen für Anwender des Produktes (Vertriebszeichnung) für alle drei Varianten ?
Mach Produkte so gut wie notwendig, mehr ist Luxus den keiner bezahlt.

Benutzeravatar
h-winkelmann
Beiträge: 2846
Registriert: 01 Aug 2012 18:16

Re: ADx5, gibt es Vertriebszeichnungen für AP UP und INT ?

Beitrag von h-winkelmann » 07 Mär 2018 13:01

Funktionalität

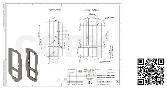
ADA59xxx / AP Reihe
ADA59 VertrZeichnung.jpg
ADA59 VertrZeichnung.jpg (28.11 KiB) 7247 mal betrachtet
iOS kompatibler Download


ADU59xxx / UP Reihe
ADU59 VertrZeichnung.jpg
ADU59 VertrZeichnung.jpg (32.56 KiB) 7247 mal betrachtet
iOS kompatibler Download


ADI59xxx / INT Reihe
ADI59 VertrZeichnung.jpg
ADI59 VertrZeichnung.jpg (36.34 KiB) 7247 mal betrachtet
iOS kompatibler Download


ADI59xxx / INT Reihe OHNE BCM Modul(e)
[/size]
ADI59 VertrZeichnung oBCM Module.jpg
ADI59 VertrZeichnung oBCM Module.jpg (33.96 KiB) 5659 mal betrachtet
iOS kompatibler Download




Konfiguration
(keine)

Seiteneffekte
(keine)

Andere Konfiguration
(keine)



Schlagworte: SlWRev5A Sprache:{xSpracheDeutsch} Dokumentation >>> Planungshilfen:{xGRPLHi}{xPLHiVertriebsZei} Projektschritt:{xGRPrjSt}{xPlanung xPS2} Artikel >>> FunktErw:{xGRFEW}{xFEWTürKomAS}
Mach Produkte so gut wie notwendig, mehr ist Luxus den keiner bezahlt.

Benutzeravatar
h-winkelmann
Beiträge: 2846
Registriert: 01 Aug 2012 18:16

Re: ADx5, gibt es Vertriebszeichnungen für AP UP und INT ?

Beitrag von h-winkelmann » 16 Mär 2018 09:27

Version 1A veröffentlicht
Änderungen:
  • - Hinweise auf die notwendige Montagehöhe bei Video ergänzt
    - Hinweise auf verwendete Schraube ergänzt. Ist relevant wenn die UP Version in eine bauseitige Platte montiert werden soll !
hier veröffentlicht
Mach Produkte so gut wie notwendig, mehr ist Luxus den keiner bezahlt.

Benutzeravatar
h-winkelmann
Beiträge: 2846
Registriert: 01 Aug 2012 18:16

Re: ADx5, gibt es Vertriebszeichnungen für AP UP und INT ?

Beitrag von h-winkelmann » 21 Mai 2021 08:23

Neue Version INT OHNE BCM Modul veröffentlicht
Änderungen:
  • - Diese Version wurde speziell für Hersteller gemacht, die ADI59 ohne Zutrittskontolle verbauen
    - hier muss man nicht erklären, warum "das Loch" für BCM nicht auszuführen ist
    hier veröffentlicht
Mach Produkte so gut wie notwendig, mehr ist Luxus den keiner bezahlt.

Antworten